欢迎访问江苏小黄鸭视频下载污环保节能科技有限公司官方网站!
江苏小黄鸭视频下载污环保节能科技有限公司
电话:13770336953 胡经理
电话:13851926016 胡经理
座机:025-57031166
地址:江苏省南京市栖霞区靖安开发区永隆桥1号
邮箱:446145111@qq.com






| 序号 | 类别 | AAO+HBAF池+滤布滤池 | AAO池+MBR | |
| 1 | 处理效率 | 出水水质 | 较好 | 一般 |
| 2 | 处理效率 | 水质保证能力 | 稳定达标一级A | 可以稳定达标一级B,不能确保达到一级A |
| 3 | 稳定性 |
耐冲击负荷能力 (水质、水量) |
强,二次启动速度快,适用于断 断续续进水工况 |
较强,膜需连续运行,不宜断断续 续进水,影响膜寿命 |
| 4 | 稳定性 | 低温的影响 | 水温波动小,低温运行较稳定 |
处理效果受低温影响较大;水温低 MBR膜通量相对降低 |
| 5 | 经济性 | 占地面积 | 占地较小 | 占地较小 |
| 6 | 经济性 | 使用寿命 |
长,HBAF填料无需更换,5-7 年后每年补充率不超过3% |
短,MBR膜使用寿命3-5年需要更 换,需要增加二次投资 |
| 7 | 经济性 | 工程建设直接费 | 5000-6000元/吨水。 | 8000-10000元/吨水。 |
| 8 | 运行要求 | 专业度 |
设备较简单,操作简单,技术要 求低,专业度要求低 |
设备较复杂,操作复杂, 技术要求高,需专业工程师管理 |




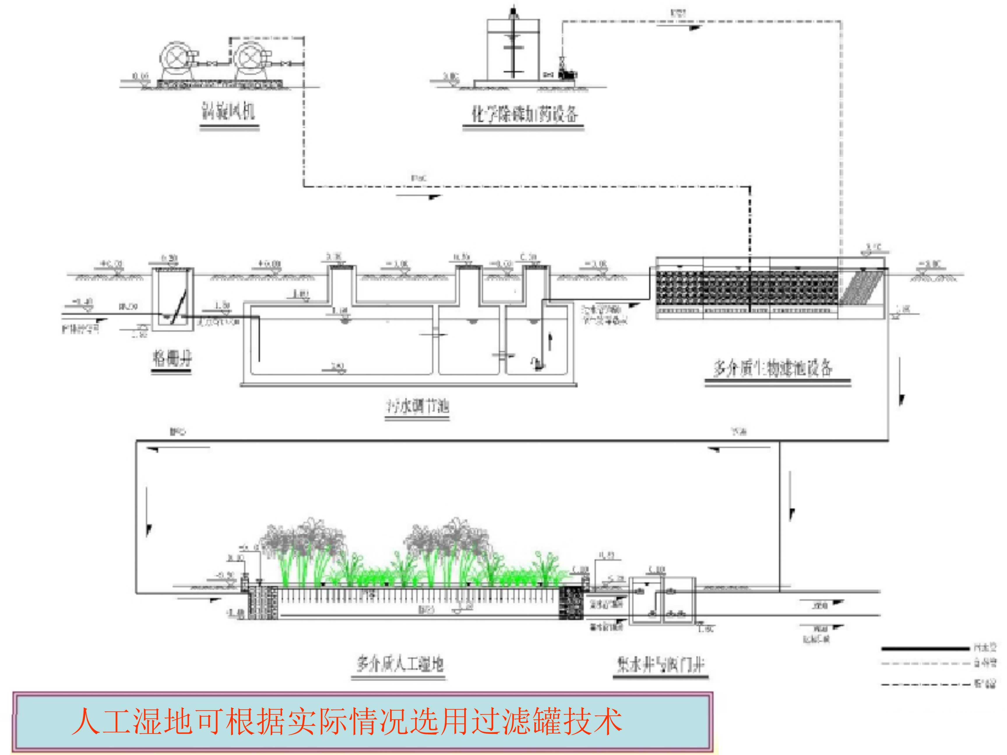
| 工艺类型 | 活性污泥法 | 接触氧化 | MBR | 多介质生物滤池 | 人工湿地 |
| 出水水质 | 一般 | 一般 | 很好 | 好 | 好 |
| 运行维护需求 | 日常维护 | 日常维护 | 维护较复杂 | 定期维护 | 低 |
| 设备投资 | 中 | 中 | 高 | 中 | 低 |
| 运行费用 | 高 | 较高 | 高 | 较低 | 低 |
| 低温适应性 | 较好 | 好 | 很好 | 很好 | 差 |
| 占地面积 | 较大 | 较小 | 小 | 小 | 较大 |
| 更换填料频率 | 无 | 3年 | 3年 | 8~10年 | 5-8年 |
| 排泥周期 | 经常 | 经常 | 12月 | 12-24月 | 原位再生 |
| 序号 |
日处理 水量(吨 ) |
标准户 数(户) |
标准人 口数 (人) |
建议调节 池规格 (吨) |
多介质生物滤池标准 3 尺寸(容积/m ) |
深层布水多介质人 2 工湿地 (面积/m ) |
备注 (PBR型号) |
||
| 序号 |
日处理 水量(吨 ) |
标准户 数(户) |
标准人 口数 (人) |
建议调节 池规格 (吨) |
A、D槽 | B、C槽 | 标准 | 最小 |
备注 (PBR型号) |
| 1 | 10 | 20 | 70 | 7 | 1.20 | 2.06 | 25 | 20 | JR-G10 |
| 2 | 20 | 40 | 140 | 12 | 2.00 | 4.00 | 50 | 40 | JR-G20 |
| 3 | 50 | 100 | 350 | 30 | 4.00 | 7.30 | 125 | 100 | JR-G50 |
| 4 | 80 | 160 | 560 | 45 | 4.80 | 8.50 | 200 | 160 | JR-G80 |
| 5 | 100 | 200 | 700 | 50 | 6.80 | 11.50 | 250 | 200 | JR-G100 |
| 6 | 150 | 300 | 1050 | 60 | 7.80 | 13.50 | 375 | 300 | JR-G150 |
| 7 | 200 | 400 | 1400 | 70 | 8.80 | 16.00 | 500 | 400 | JR-G200 |
| 8 | 散户 | 1-2 | 无动力净化槽 | ||||||
| 9 | 散户 | 3-5 | 无动力净化槽 | ||||||